Erdgeschoss-Maisonette mit eigenem Garten - zentral in Mainaschaff
Objektnummer
LW234
Flächen
- Wohnfläche: 121,57 m²
- Grundstücksfläche: 302 m²
- Wohneinheiten: 3.00
- Zimmer insgesamt: 4
- Schlafzimmer: 3
- Badezimmer: 2
- Stellplätze: 2
- Duplex-Stellplätze: 2
- Terrassen: 1
Preise
- Kaufpreis: 549.000 €
- Stellplatzkaufpreis (Duplex): 14.500 €
-
In zentraler Wohnlage von Mainaschaff entsteht ein zeitgemäßes Neubauprojekt mit drei attraktiven Wohnungen. Das Ensemble besticht durch eine klare, moderne Architektur, hochwertige Materialien und eine energieeffiziente Bauweise gemäß den Vorgaben des Gebäudeenergiegesetzes 2024. Das Haus entsteht auf einem einladenden Eckgrundstück aus einem harmonischen Zusammenspiel von Komfort und Stil. Das Bauvorhaben befindet sich derzeit bereits in der Umsetzung und wird voraussichtlich bis Frühjahr 2027 fertiggestellt sein.
Der Bau erfolgt in Massivbauweise und überzeugt mit durchdachten Grundrissen sowie großzügigen Wohnflächen. Zahlreiche Fenster mit Dreifachverglasung sorgen für angenehm helle Räume. Beheizt wird das Gebäude über eine Luft-Wasser-Wärmepumpe in Verbindung mit einer komfortablen Fußbodenheizung, was zu einem behaglichen Wohnklima und niedrigen Energiekosten beiträgt. Die Wohnungen werden schlüsselfertig übergeben. Das Projekt vereint hochwertige Bauqualität, moderne Technik und eine ruhige, familienfreundliche Umgebung – ideal für alle, die in Mainaschaff ein stilvolles Zuhause mit Zukunft suchen.
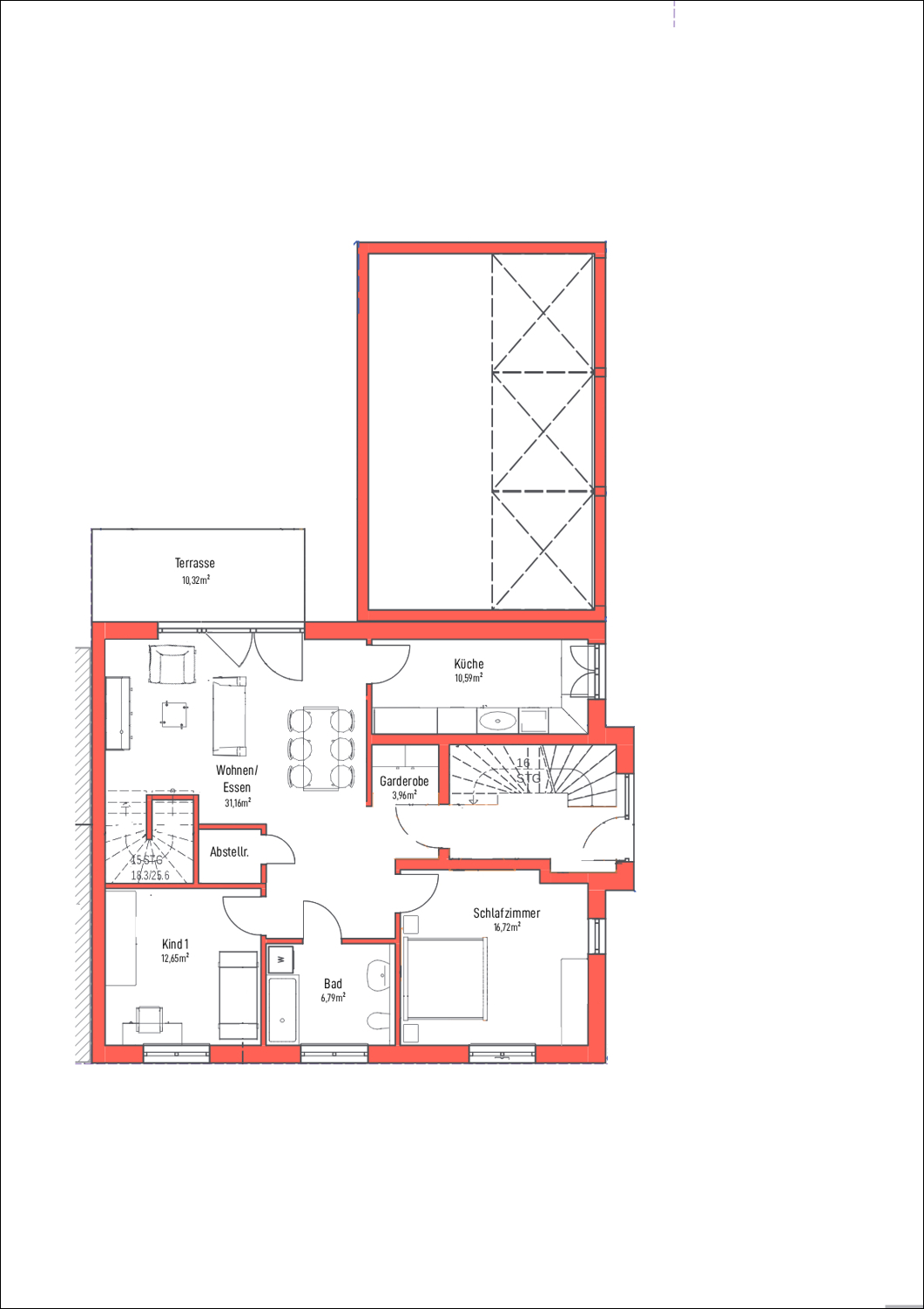
Erdgeschoss-Maisonette mit eigenem Garten
Diese 4-Zimmerwohnung erstreckt sich als Maisonette über das Erd- und Untergeschoss. Im Erdgeschoss finden Sie den großzügigen Wohn- und Essbereich, eine separate Küche, sowie zwei geräumige Schlafzimmer und ein Tageslichtbad mit Badewanne. Die Terrasse ist direkt an den Wohnbereich angebunden und über die Doppel-Terrassentür lässt sie sich nahtlos ins Wohnzimmer integrieren – optisch vergrößert sich der Wohnraum damit nicht nur, sondern erhält auch unmittelbaren Zugang zum eigenen Garten sowie einen wunderbaren Blick darauf. Im Untergeschoss wartet ein weiterer Schlafbereich mit eigenem Bad en Suite - ideal als privater Elternbereich, für jugendliche Kinder oder auch für ein Seniorenzimmer. Aktuell ist auch noch ein separater Eingang im Untergeschoss möglich. Insgesamt präsentiert sich dieses Bauprojekt als ein Wohnensemble mit einer überschaubaren Eigentümergemeinschaft, in der man sich rundum wohlfühlen kann. -
Zustand & Erschließung
- Baujahr: 2026
- Zustand: Erstbezug
- Bauweise: Massiv
- Keller: voll unterkellert
Sonstiges
Aurelion & Company wurde exklusiv vom Eigentümer mit der Vermarktung dieser Immobilie beauftragt. Gerne stehen wir Ihnen für Ihre Rückfragen zur Verfügung. Für eine Besichtigung vereinbaren Sie mit uns einen Termin.
Alle Angaben stammen vom Eigentümer bzw. Dritten. Diese wurden von uns sorgfältig geprüft und nach bestem Wissen und Gewissen bearbeitet. Alle Angaben sind somit ohne Gewähr auf Vollständigkeit und Richtigkeit. Der Zwischenverkauf, die Zwischenvermietung, Fehler und Irrtümer bleiben uns vorbehalten. -
-bezugsfertige Übergabe
- Tageslichtbad
- moderne Fliesen
- Bodenbeläge nach Wahl des Käufers bis 25,- €/m²
- 3-Fach verglaste Kunststofffenster
- elektrische Rollläden
- Video-Sprechanlage
- Luft-Wasser-Wärmepumpe
- Fußbodenheizung- Heizungsart: Fußbodenheizung
- Befeuerung: Luft-Wärmepumpe
- Bodenbelag: Fliesen
-
- Primärenergieträger: Luft-Wärmepumpe
- Energieausweis-Jahrgang: nicht verfügbar
- Energieausweis-Gebäudeart: Wohngebäude
-
- Distanz zur Autobahn: 2,0 km
- Distanz zum Kindergarten: 0,2 km
- Distanz zur Grundschule: 0,4 km
- Distanz zur Realschule: 0,4 km
- Distanz zum Gymnasium: 4,2 km
- Distanz zum Zentrum: 0,5 km
Grundrisse










